費強,張維合*
(廣東科技學院機電工程學院,廣東 東莞 523083)
摘要: 根據汽車空調鼓風機左右蓋結構特點設計了一副大型、復雜側向抽芯注塑模具。模具采用熱流道澆注系統以及快速和均衡的冷卻系統,成型周期縮短了10 %,精度提高了一級,達到了MT3級(GB/T 14486—2008)。模具通過采用復合抽芯和延時抽芯有效解決了成型塑件結構復雜、倒扣多的脫模難題。模具導向定位系統采用標準滾珠導套,大大提高了模具的精度和壽命。
關鍵詞: 汽車空調鼓風機左右蓋;大型注塑模具;側向抽芯機構;復合抽芯;延時抽芯;熱流道澆注系統
汽車空調系統主要由鼓風機、蒸發器、壓縮機、散熱器、干燥器和膨脹閥組成,鼓風機俗稱風箱,位于車艙內部,其他組件則配置在引擎室當中。鼓風機是汽車空調系統核心部件和主要送風源。
本文介紹了某款名牌汽車的空調鼓風機左右蓋注塑模具結構和設計經驗。
1 塑件結構分析
圖1(a)、(b)是某新能源汽車空調鼓風機的左蓋塑件圖,圖1(d)、(e)、(f)是該品牌汽車空調鼓風機的右蓋塑件圖。塑件材料為聚酰胺6(PA6)和聚酰胺66(PA66)共混改性后再加30 %玻璃纖維(GF)增強(PA6+PA66+GF30),收縮率為0.35 %[1]。塑件精度高,要求達到MT3級(GB/T 14486—2008)。塑件形狀復雜,2個塑件共有11處倒扣,側向分型與抽芯機構相當復雜。汽車空調鼓風機的左右蓋立體圖及分型線見圖1(c)和(g)。
圖1 汽車鼓風機左、右蓋塑件圖
2 模具結構設計
2.1 澆注系統設計
成型塑件屬于中型零件,批量大,成型品質和尺寸精度要求高,模具采用熱流道澆注系統,2個型腔都采用單點進料,澆口位置設計在塑件上方,熔體經熱流道澆注系統直接進入模具型腔。與點澆口三板模相比,省去了定距分型機構和4根長導柱,從而大大簡化了模具結構[2]。由于熔體直接進入型腔,沒有澆注系統凝料,從而大大縮短了注射周期,大大提高了成型品質。模具的熱流道澆注系統由一級熱射嘴,二級熱射嘴,熱流道板以及其他定位零件和隔熱零件組成,詳見圖2。
圖2 模具熱流道澆注系統
2.2 側向抽芯機構設計
汽車空調鼓風機左蓋塑件存在S1~S6共6處倒扣,右蓋塑件存在S7~S11共5處倒扣,模具需要設計11個側向抽芯機構。其中S4和S6抽芯方向相互干涉,S9抽芯又受到塑件外圈的影響,這3個側向抽芯機構是設計難點。
2.2.1 汽車空調鼓風機左蓋側向抽芯機構設計
倒扣S5在塑件內側,模具只能采用斜推桿側向抽芯機構[圖3(a)]。塑件內側倒扣深度5 mm,加上安全距離,S5的抽芯距離取7.7 mm。根據塑件高度,推出距離取110 mm,則斜推桿傾斜角度α=arc tg7.7/110=4 °[3]。
斜推桿側向抽芯機構包括斜推桿、導向塊和斜推桿底座。
倒扣S2在塑件左外側,模具采用“斜導柱+滑塊”側向抽芯機構,S2的抽芯距離不大,只有4.5mm,但抽芯面積較大,為了方便成型塑件取出,抽芯距離取20 mm,斜導柱傾斜角度取20 °[4],詳見圖3(a)。
左蓋最復雜的側向抽芯機構是S4和S6,這2個側向抽芯方向相互干涉。為了解決這一問題,做到2個抽芯都能順利脫模,模具采用了延時抽芯及滑塊上走滑塊的復合抽芯機構[5?6]。固定于定模A板上的S3和S4的鎖緊塊既是鎖緊零件又是驅動滑塊抽芯的驅動零件,開模時,由于彎銷2和滑塊4之間存在較大的間隙,開模前58 mm,滑塊4不動,S3和S4的鎖緊塊(也是驅動塊)帶動S3滑塊21和S4滑塊22向外側抽芯。S3和S4完成抽芯后,彎銷再驅動S1滑塊4,模具開始S1和S6的側向抽芯。由于S1的倒扣深度為115 mm,滑塊4的抽芯距離取120 mm[7]。
2.2.2 汽車空調鼓風機右蓋側向抽芯機構設計
和左蓋一樣,內側倒扣S10采用斜推桿側向抽芯機構,左右蓋的倒扣深度一樣,因此傾斜角度均為4 °,都由斜推桿、導向板和底座組成,詳見圖4(e)。
右蓋有4個外側倒扣S7、S8、S9和S11,其中S9抽芯最困難,因為在抽芯方向上存在凸起結構阻礙側向抽芯。為解決這一難題,此處采用了復合側向抽芯機構。開模時,斜導柱41驅動滑塊39以及固定于滑塊上的側抽芯25和T型扣35,其中T型扣35又帶動縱向活動型芯24向下滑動脫離塑件。在這一過程中,彈簧31抵住S9側抽芯不動。當活動型芯20完成縱向抽芯距離后,小拉桿33再拉動S9側抽芯向左側抽芯,脫離塑件倒扣。倒扣S8的深度約為125 mm,加上安全距離,S8滑塊抽芯距離取130 mm,由擋銷和滾珠定位。由于抽芯距離較大,斜導柱37的傾斜角度取25 °[8]。
S7側向抽芯機構相對較為簡單,主要由斜導柱24、滑塊26、鎖緊塊25以及定位零件27組成[9]。
綜上所述,側向抽芯機構是汽車空調鼓風機右蓋注塑模具最復雜的核心結構,從側向抽芯的方向上看,既有與開模方向垂直的抽芯,又有和開模方向不垂直的斜向抽芯;從驅動側向抽芯的動力來源上看,既有動模斜導柱抽芯、彎銷抽芯,又有斜滑塊和斜推桿抽芯;從抽芯位置上看,既有動模抽芯,又有定模抽芯;從側向抽芯的性質上看,既有強制抽芯,又有延時抽芯;從側向抽芯結構上看,有單一滑塊側向抽芯,又有大滑塊中行小滑塊的復合抽芯;滑塊的定位既有“擋銷+滾珠+彈簧”的定位結構,又有DME定位夾定位??梢哉f是注塑模具側向抽芯機構的經典結構之一。11個側向抽芯機構的抽芯順序是:S2、S3、S4、S7、S8、S9、S11→S1、S6→S5、S10,詳見“3模具總裝結構及工作過程”部分。
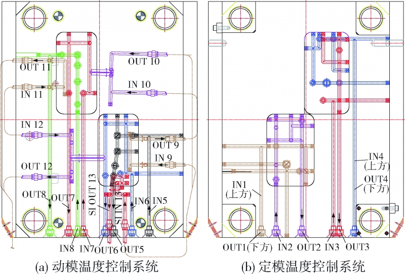
2.3 溫度控制系統設計
汽車空調鼓風機左、右蓋注塑模具采用“直通式冷卻水管+隔片式冷卻水井”的組合式溫度控制系統,總共13組冷卻水路,其中定模冷卻水路4,動模冷卻水路9組,詳見圖5和圖6。模具所有的成型零件、每一個側向抽芯機構的滑塊均設計了冷卻水路。成型零件的冷卻水路都經由模板進出,這樣方便拆裝,水管接頭不易損壞。從圖中可以看出冷卻系統縱橫交錯,分布均勻,使模具得到了快速冷卻和均衡冷卻,大大提高了模具的冷卻效率和成型塑件的尺寸精度[10]。注射成型周期為33 s,尺寸精度達到了MT3級(GB/T 14486—2008),與同類型的車型比較,生產效率提高了10 %,精度提高了一級。
圖5 模具溫度控制系統

圖6 模具溫度控制系統的立體示意圖
3 模具總裝結構及工作過程
模具采用非標模架,熱流道澆注系統,總共11個側向抽芯機構。模具最大外形尺寸為850 mm×700 mm×852 mm,總質量為3 397 kg(其中定模1 687 kg,動模1 710 kg),屬于大型注塑模具。為了提高模具的精度和壽命,動模導套和推桿固定板導套均采用閉式、帶2個密封圈的標準滾珠導套,其中動模導套規格型號為R06020 80 10(直徑為80 mm),推桿固定板導套規格型號為R06020 30 10(直徑為30 mm)。滾珠導套具有精度高、方便安裝和節省空間等特點,只用于大型、精密注塑模具。模具總裝結構見圖7。模具工作過程為:
(1)熔體經一級熱射嘴68進入熱流道板65,再由二級熱射嘴66和70進入模具型腔。
(2)填滿型腔后,經保壓、冷卻,當固化至足夠剛性后,注塑機拉動模具動模,模具從定模A板62和動模B板48之間的分型面處打開,開模過程為:①首先,成型塑件脫離定模型腔。②接著,斜導柱18撥動滑塊15,帶動側抽芯14完成S2側向抽芯;斜導柱27撥動滑塊30,帶動側抽芯28完成S7側向抽芯;斜導柱41撥動滑塊39,帶動側抽芯25完成S8側向抽芯;T型扣35撥動定模斜滑塊24,完成S9側向抽芯;T型扣20、23分別撥動定模斜滑塊21、22,完成S3和S4側向抽芯;斜導柱45撥動滑塊46,帶動側抽芯42完成S11側向抽芯。③開模58 mm后,彎銷2撥動滑塊4,帶動斜向抽芯1完成S1側向抽芯;同時T型扣6帶動活動型芯5向下移動脫離成型塑件。④最后滑塊4帶動側抽芯8,完成S6側向抽芯。
圖7 汽車空調鼓風機左蓋注塑模具結構
(3)完成開模行程后,通過螺紋聯結于模具聯結柱56的注塑機頂棍推動模具推桿固定板49、推桿底板50,進而推動推桿55、58,將塑件推離動模鑲件11、52和型芯13、54;同時,斜推桿9和34一邊推動成型塑件脫模,一邊橫向移動完成內側倒扣S5和S10的側向抽芯。
(4)成型塑件安全脫離模具后,注塑機推動動模合模,在合模過程中,斜導柱18推動滑塊15復位,彎銷2分別推動滑4復位,斜導柱41推動滑塊39復位,T型扣35推動滑塊24復位,斜導柱27推動滑塊30復位,斜導柱45推動滑塊46復位,推桿固定板由復位桿61推動復位,推桿固定板在復位過程中拉動推桿55、58以及斜推桿9、34復位。
(5)行程開關31接觸后,鎖模,模具開始下一次注射成型。
4 結論
(1)模具采用熱流道澆注系統,大大提高了成型塑件的品質,簡化了模具結構,加之模具采用快速和均衡的冷卻冷卻系統,大大提高了模具的冷卻效率和成型塑件的尺寸精度;與同類型車型的模具相比生產效率提高了10 %,成型塑件精度提高了一級,達到了MT3級;
(2)模具側向抽芯機構采用復合抽芯機構和延時側向抽芯機構,有效解決了成型塑件結構復雜、側向抽芯相互干涉的難題;
(3)模具導向定位系統采用標準滾珠導套,大大提高了模具的精度和壽命;模具結構復雜,各機構設計科學先進,新穎實用,側向抽芯動作安全可靠,模具自投產以來,運行平穩,成型塑件品質達到了設計要求。
參考文獻:
[1] 張維合.注射模具設計實用手冊[M].北京:化學工業出版社,2011:112?177.
[2] 張維合.汽車注塑模具設計要點與實例[M]. 北京:化學工業出版社,2016:23?45.
[3] 張維合. 基于順序閥熱流道技術汽車導流板注射模設計[J].塑料科技,2018,46(12): 100?105.
[4] 沈忠良,鄭子軍,肖國華,等.汽車中控面板IMD成組模具設計[J]. 工程塑料應用,2017,45(1):70?75.
[5] 張維合. 汽車后背門護板熱流道大型注塑模設計[J].中國塑料,2019,33(5):102?108.
[6] 萬鵬程.汽車保險杠注射模澆注系統設計與成型參數優化[M].昆明理工大學出版社,2011:58?75.
[7] 張維合.《汽車手套箱注塑模設計》[J]. 現代塑料加工應用,2015,27(4):54?57.
[8] 張維合. 汽車中央裝飾件順序閥熱流道二次頂出注塑模設計[J]. 工程塑料應用,2018,46(7):87?91.
[9] 張維合.汽車前門地圖袋低壓雙層注塑模設計[J]. 塑料工業,2017,45(6):60?65.
[10] 張維合,馮國樹,朱曉敏,等.汽車右后門板順序閥熱流道大型薄壁注塑模具設計[J].中國塑料,2022,36(1):166?171.